This is cloned from Production by 20250-11-19 and Noted this is Preprod environment.
RT-CB4D
Base product: ROOF-CABLE-SUPPORTS
Rooftop Cover Kits for SnapStak® Snap-in Hangers, four holes
Specifications
Product classification
| Product Type | Cover |
General specifications
| Cable Runs, quantity | 4 |
| Hole, quantity | 4 |
| Mounting | Non-penetrating |
Dimensions
| Height | 279.4 mm | 11 in |
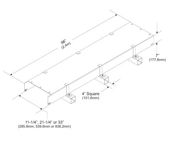
| Width | 508 mm | 20 in |
| Length | 2438.4 mm | 96 in |
| Hole Size | 3/4 in |
Outline drawing
| Click on image to enlarge. |
Material specifications
| Material Type | Galvanized steel |
Mechanical specifications
| Wind Rating | For Specifications, please contact your local ANDREW representative |
Packaging and weights
| Included | Channel | Hardware | Hold-down clamps | Sleepers (3) |
| Packaging quantity | 1 |
| Weight, net | 39 kg | 85.98 lb |
Regulatory compliance/certifications
| Agency | Classification |
| ISO 9001:2015 | Designed, manufactured and/or distributed under this quality management system |
Product classification
| Product Type | Cover |
General specifications
| Cable Runs, quantity | 4 |
| Hole, quantity | 4 |
| Mounting | Non-penetrating |
Dimensions
| Height | 279.4 mm | 11 in |
| Width | 508 mm | 20 in |
| Length | 2438.4 mm | 96 in |
| Hole Size | 3/4 in |
Material specifications
| Material Type | Galvanized steel |
Mechanical specifications
| Wind Rating | For Specifications, please contact your local ANDREW representative |
Packaging and weights
| Included | Channel | Hardware | Hold-down clamps | Sleepers (3) |
| Packaging quantity | 1 |
| Weight, net | 39 kg | 85.98 lb |
| Click on image to enlarge. |
Regulatory compliance/certifications
| Agency | Classification |
| ISO 9001:2015 | Designed, manufactured and/or distributed under this quality management system |
Documentation & downloads